airvent SM ULTIMA

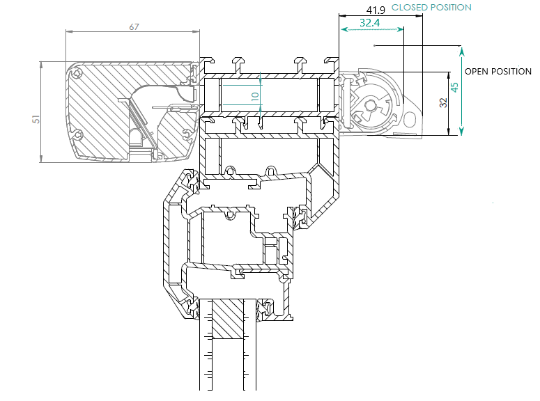
The Ultima is an aluminium vent with excellent acoustic attenuation and weatherability. We offer this vent in two airflow sizes offering up to 47dB  Dn,e,w  sound reduction in the open position.

Enquire About This Product



  • Up to 47 dB Dn,e W reduction when open
  • 5000mm2 EA & 2960mm2 EA Airflow sizes
  • Graduated opening for airflow control
  • Wool-pile seal: Watertight up to 1000 Pa
  • Natural upward airflow deflection
  • Portable rod control (Optional)
  • Manufactured from extruded aluminium
  • Polyester powder coated
  • 10 year Guarantee

COLOURS

White RAL 9016 (semi-gloss)
Grey RAL 7016 (semi-gloss)
Bespoke RAL

Bespoke colours available on request. MOQ’s apply. Mixed sets of internal vent and external hood also available on request.

Equivalent AreaWater tightness
SM Ultima 2960 mm2 EA2960 mm21000 Pa
SM Ultima 5000 mm2 EA5000 mm21000 Pa
D n,e,w (C;Ctr) – Open position
SM Ultima 2960 mm2 EA47(-1;-2) dB
SM Ultima 5000 mm2 EA39(0;-2) dB